Primarschule

Visualisierung: maaars

Sporthalle
Situation

Situation

Grundriss UG

Grundriss UG

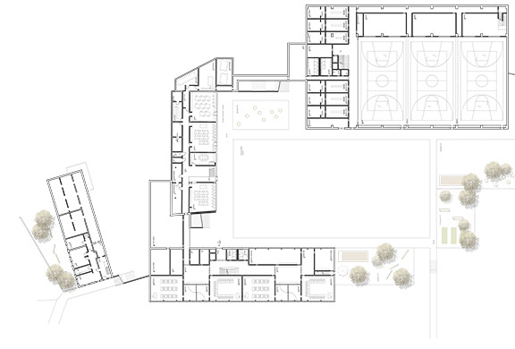
Grundriss EG

Grundriss EG

Grundriss OG

Grundriss OG

Ansichten

Ansichten

Schnitte

Schnitte

Wettbewerb Schulanlage Hagen Illnau, 5. Rang

1
/ 8
Col_0
Offener Wettbewerb 5. Rang, 2013
Landschaftsarchitekten: Mettler Landschaftsarchitektur, Gossau
Bauingenieuer: Dr. Lüchinger+Meyer, Zürich

Die Schulanlage Hagen liegt an der östlichen Seite eines Hügelzuges, eingebettet zwischen Siedlungsraum und offenem Ackerland, mit Ausblick gegen Osten ins Dorfzentrum und gegen Süden bis in die Voralpen.

Die bestehenden Parkplätze werden am heutigen Standort aufgehoben. Durch ihre Neuplatzierung an der Peripherie wird die gesamte Schule vom motorisierten Verkehr befreit. Der öffentliche Raum gewinnt durch diese Massnahme erheblich an Qualität. Die Erschliessung wird zum zentralen Begegnungs- und Erlebnisraum, der als Rückgrat der gesamten Anlage fungiert. Entlang dieser Achse reihen sich Gebäude und Aussenräume auf, und von hier werden sie auch alle erschlossen. Zugleich vermittelt diese Zone zwischen den höher- und tiefergelegenen Bereichen.

Die Dreifachsporthalle mit integrierter Tagesbetreuung wird prominent entlang der Hangkante in die Mitte der Anlage gesetzt. Dadurch verschieben sich die bestehenden Kräfteverhältnisse und eine neue Gewichtung wird postuliert. Die Halle wird zum neuen verbindenden Element. Zusammen mit den beiden grossen Aussenplätzen bildet sie ein Gelenk zwischen dem Ensemble der Primar- und demjenigen der Sekundarschule. Durch den Sport werden die verschiedenen Lernwelten miteinander verbunden.

Die Turnhalle und der Verbindungsbau von Schulhaus A werden abgebrochen. Dadurch entsteht mit dem restlichen Teil der Klassenzimmer ein eigenständiger Baukörper. Zusammen mit dem Neubau und dem Schulhaus B bildet er ein Ensemble, das ein neues Gegengewicht zur Sekundarschule darstellt. Der längliche Pausenplatz wird nun durch die drei Gebäude klar begrenzt, jedoch nicht abgeschlossen. Der Neubau schliesst mit seiner südlichen Ecke und dem gedeckten Eingangsbereich an den Pausenplatz an. Zugleich vermittelt er zwischen den verschiedenen Niveaus und spannt mit seinem nördlichen Teil im Verbund mit der Sporthalle und der Nordseite von Schulhaus B einen neuen Raum auf.